ミセガマエヤのデザイン設計室、又私のご紹介がてら以前、デザインをさせていただいたマンションリノベーションについて少しアップします。
まず、言葉の壁がありながら、遠い海外からの厚い信頼を頂きました、オーナーのMr. Andrew Macrae(アンドリュー・マクレー)氏、並びにMr. Alfred Chan(アルフレッド・チャン)氏に厚く感謝致します。
又、このような経験をさせていただいた事と、このプロジェクトに関わった全ての方に感謝致します。
昨年8月~12月25日、ちょうど昨年のクリスマスまでの間、このプロジェクトの空間のデザイン、設計をさせていただきました。あれからもう1年です。
オーナーの方は、現役の裁判官の方で、アンドリュー・マクレー氏はイギリス人、アルフレッド・チャン氏は中国の方で上海を拠点に活動されております。
非常に聡明な方で(当たり前か^^;)、的確かつ明確な返答をして頂いていたことを思い出します。とても助かりました。
語学力に乏しい私は、主に、通訳の方にお世話になりながらの打合せでしたが、極力スケッチや図面等のビジュアルでの表現にて提案させていただきました。
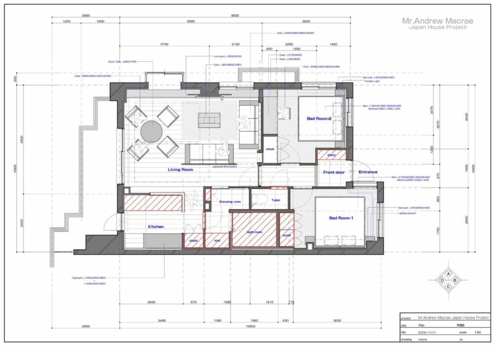
内容はと申しますと、ホームページでもご紹介させていただいておりますが、セカンドハウスということでしたので、和の香りがする空間を提案させていただきました。
以下は当時の資料の一部です。
出来上がりは、ホームページにてご確認くださいませ。










